Мы используем куки-файлы. Соглашение об использовании

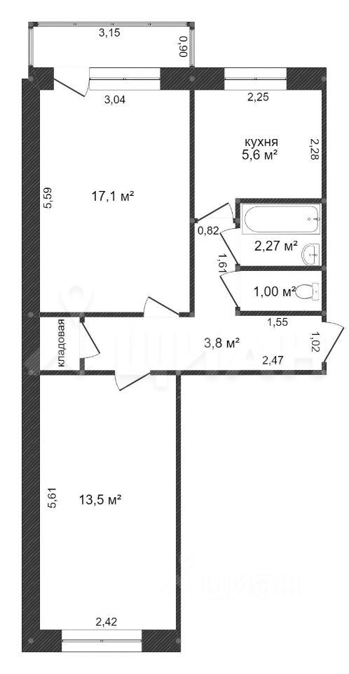
Продается 3-комн. квартира, 56,7 м²

Общая площадь56,7 м²
Площадь кухни6 м²
Этаж5 из 5
Год постройки1970
Объявление снято с публикации, поищите ещё что-нибудь

О квартире

Тип жилья

Вторичка

Общая площадь

56,7 м²

Площадь кухни

6 м²

Высота потолков

2,5 м

Санузел

1 раздельный

Балкон/лоджия

1 балкон

Вид из окон

На улицу и двор

Ремонт

Косметический

О доме

Год постройки

1970

Строительная серия

1-447

Тип дома

Кирпичный

Тип перекрытий

Железобетонные

Подъезды

6

Парковка

Наземная

Отопление

Центральное

Аварийность

Нет

Газоснабжение

Центральное

3 500 000 ₽
Эксперт от ЦианаПомощь с поиском и сделкой
Цена за метр
61 728 ₽/м²
Условия сделки
альтернатива
Ипотека
возможна
Агентство недвижимости
Суперагент